《ご商談中》【長野市】稲田2丁目〈中古一戸建て〉
POINT
《ご商談中》
【徳間小まで500m】小学校徒歩7分×駅徒歩圏内。子育て世代にうれしい稲田の4LDK戸建。畳・襖・クロスリフォーム済!即入居OKの安心中古住宅
■教育・生活利便が整った好立地
徳間小学校まで徒歩7分、かざぐるま保育園徒歩2分。北長野駅も徒歩14分で通勤・通学に便利。スーパー・ドラッグストアも徒歩圏にあり、子育て世代が安心して暮らせる環境です
■陽だまりリビングと床暖でくつろぎ時間
リビングは南向きで採光◎。床暖房で冬も快適に過ごせます。食洗器やシンクダウン式吊戸棚、カップボードなど、家事を助ける設備が整い、都市ガス仕様で経済的です。
■プライベートガーデン×安心設計
北側6m道路に面した落ち着いた立地。庭には鉄棒や物置もあり、子どもの遊びや趣味に活用できます。1階の窓には雨どいシャッターを設置し、防犯性や強風時の安心の設計です。
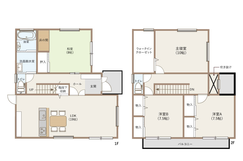
間取り

ロケーション

長野市立徳間小学校まで約500m

長野市立北部中学校まで約1.9km

長野電鉄「北長野駅」まで約1.0km

かざぐるま保育園まで約170m

ツルヤ徳間店まで約400m

マツモトキヨシ稲田店まで約650m

ベビー・子供用品バースデイ稲田店まで約550m

Seria 若槻通り店まで約1.6km

須坂インターまで約7.4km

ファミリーマート長野サンロード店まで約450m
アクセス
所在地
長野市稲田2丁目2136-3
ギャラリー
物件概要
所在地
長野市稲田2丁目2136-3
交通
長野電鉄「北長野駅」徒歩14分(1.0km)
販売価格
2,890万円
月々支払い
61,790円
※支払い条件例
頭金 0円/ボーナス払い 年間:100,000円(借入条件:変動金利0.9%、借入期間40年間)
土地面積
190.96㎡(57.76坪)
建物面積
1階 67.90㎡
2階 66.24㎡
134.14㎡(40.57坪)
建物構造
木造合金メッキ鋼板ぶき2階建
間取り
4LDK
築年月日
2000年(H12)9月1日
私道負担
なし
土地権利
所有権
地目
宅地
都市計画
市街化区域
用途地域
第1種低層住居専用地域
建ぺい率
50%
容積率
100%
接道状況
"北 幅員6.0m/接道11.33m
幅員は道路台帳、接道は地籍測量図を参照
駐車場
2台
現況
空き家
引渡時期
相談(即時対応可能)
設備
上水道・下水道・都市ガス・石油
学区
長野市立徳間小学校まで約500m
長野市立北部中学校まで約1.9km
備考
2025年7月 リフォーム済
※畳表替え済み
※襖張替え済み
※クロス張替え済み
※水回りクリーニング済み
2015年 給湯器、ガスコンロ交換済
取引様態
専任媒介(仲介手数料:売買代金の3%+6万円+税)
WEB来場予約
WEB来場予約は下記フォームからご予約ください

























