【千曲市】稲荷山〈中古一戸建て〉 | セリタホームズ

【千曲市】稲荷山〈中古一戸建て〉

POINT

キッチン・バス・トイレなど水まわりを一新し、外壁塗装や建具もリフォームしてからお引渡し。
4LDK+ガレージ付きで、家族の暮らしをしっかり支える住まいです。

■買い物・行政が身近な便利な立地

スーパーやドラッグストア、市役所が車で5分圏内にそろう便利な環境。保育園も徒歩圏にあり、日々の生活をスムーズに支えてくれます。

■家族でゆったり暮らせる広さと間取り

土地は約90坪、本宅は約38坪の4LDK。リビングを中心に家族が集まり、のびのびと暮らせる空間が広がります。駐車は3台可能です。

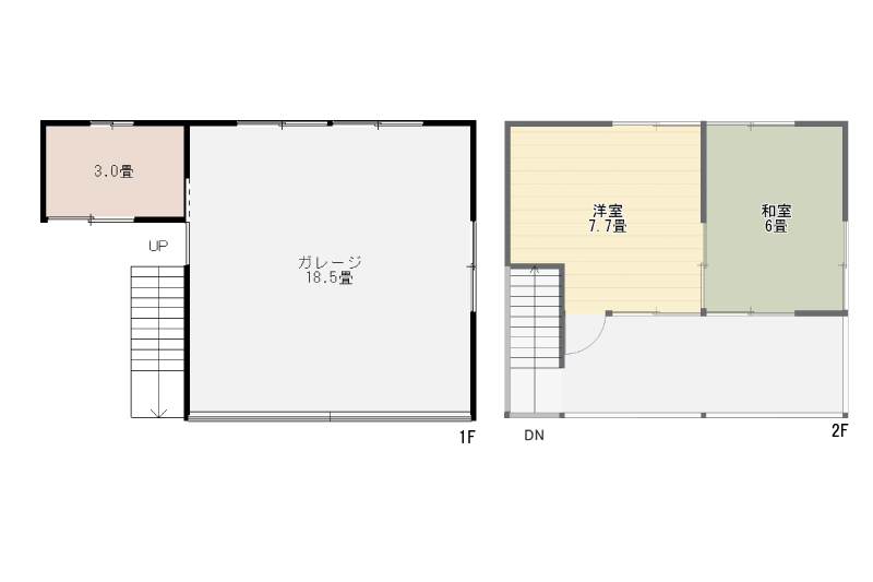
■ガレージ+居住スペースもリフォーム

付属建物は1階がガレージ、2階には洋室と和室の2部屋を備えています。こちらもリフォーム予定で趣味や在宅ワーク、来客用の部屋として多彩に活用できます。本宅も水まわりを中心にリフォームし、安心と快適さを兼ね備えた住まいに生まれ変わります。

ロケーション

千曲市立治田小学校まで約1.8km

千曲市立更埴西中学校まで約1.3km

稲荷山保育園まで約550m

ツルヤ稲荷山店まで約1.8km

コメリハード&グリーン更埴店まで約900m

ファミリーマート長野篠ノ井塩崎店まで約450m

クスリのアオキ粟佐店まで約1.7km

千曲市役所まで約1.8km

アクセス

所在地

千曲市大字稲荷山900番地

物件概要

所在地

千曲市大字稲荷山900番地

交通

JR篠ノ井線「稲荷山」徒歩25分

販売価格

1898万円

月々支払い

47,099円

※支払い条件例

頭金:0円/ボーナス払い:0円(借入条件:変動金利0.9%、借入期間40年間)

土地面積

296.68㎡(89.74坪)

建物面積

建物:124.21㎡ 1階 91.09㎡ / 2階 33.12㎡
付属建物:58.28㎡ 1階 35.54㎡ / 2階 22.74㎡

建物構造

木造瓦葺2階建

間取り

4LDK

築年月日

1980年(昭和55年)10月

私道負担

なし

土地権利

所有権

地目

宅地

都市計画

非線引区域

用途地域

第1種住居地域

建ぺい率

70%

容積率

200%

接道状況

西 幅員7.4m/接道6.8m
南 幅員3.5m/接道36.9

駐車場

3台可

現況

リフォーム中

引渡時期

リフォーム後引渡し(令和8年1月中旬完了予定)

設備

上水道・下水道・個別プロパンガス(リース契約)

リフォーム予定箇所

・システムキッチン新品交換
・トイレ新品交換
・フロア増張(一部CF張替)
・玄関ドア新品交換
・システムバス新品交換
・洗面化粧台新品交換
・建具交換
・TVモニターホン新品
・外壁塗装
・内部塗装
・白アリ防蟻工事(5年保証)※工事完了日より5年
・照明器具新品交換
・ハウスクリーニング"

取引様態

専任媒介

備考

・図面等、現況優先とします。
・敷地内に電柱あり
・道路後退あり:約8.11㎡
・前所有者の売却理由:相続資産の整理
・本物件敷地内には中部電力所有の電柱1本が存しており、1本につき年間1,500円の敷地使用料が支払われています

WEB来場予約

WEB来場予約は下記フォームからご予約ください

ご希望場所

(必須)

ご来場希望日時

(必須)

お名前

(必須)

ふりがな

(必須)

電話番号

(必須)

郵便番号

(必須)

-

ご住所

(必須)

番地・建物名など

(必須)

ご質問・ご相談等
ご記入ください

ホームページを
ご覧になったきっかけ

(必須)

個人情報の取り扱いについて

本入力フォーム及び、メールでご連絡頂きましたお客様の個人情報につきましては、厳重に管理を行っております。お預かりした個人情報は、当社からの情報提供やご案内のみに利用させていただき、法律に基づき開示が義務づけられている等の特段の事情がない限り、お客様の事前の承諾なしに第三者に開示・提供をいたしません。

データを送信される際の情報はSSL暗号化通信により保護されますので安心してご利用ください。

入力内容をご確認ください